Serramenti

Home | Azienda | Contatto | Come raggiungerci | News | Certificazione

 

Serramenti a Battente

A5S BASIC

100 THERMIC

 

 

Serramenti a battente 100 Thermic (Serramenti ad Isolamento Termico)

I serramenti in alluminio 100 THERMIC rappresentano la risposta tecnologica d’avanguardia alle esigenze di isolamento termico.

L’alto potere isolante di questi serramenti crea un notevole comfort anche durante i mesi estivi tradizionalmente più caldi proteggendo gli ambienti dal caldo esterno.

Oltre alle sopracitate caratteristiche questi serramenti sono particolarmente idonei nelle situazioni architettoniche in cui l’estetica, funzionalità e durabilità rappresentano requisiti fondamentali imprescindibili.

La qualità delle materie prime utilizzate unitamente alla capacità progettuale ed alla certificazione delle produrre costruttive adottate garantiscono il raggiungimento delle più elevate prestazioni per questo tipo di serramenti.

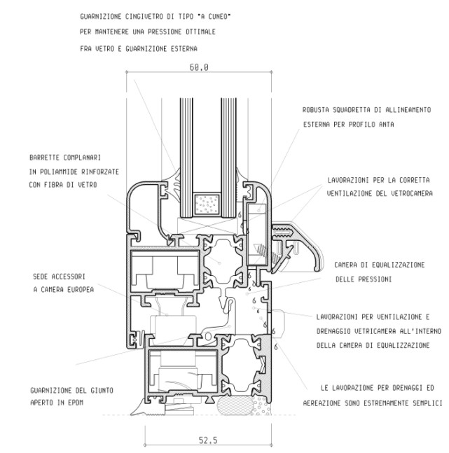
Gli infissi 100 THERMIC sono realizzati con profilati di alluminio a taglio termico costruiti con le migliori tecnologie presenti oggi sul mercato, sono ottenuti con listelli in poliammide rinforzati con fibre di vetro ed inseriti meccanicamente tra le parti metalliche. 

I serramenti 100 THERMIC appartengono al gruppo 2.2 come da norma DIN 4108.

UTILIZZO

Questa gamma di serramenti in alluminio consente la messa in opera di una larga varietà di infissi per l’inserimento in qualsiasi contesto ambientale (costruzioni d'epoca, nuove costruzioni) grazie anche alla particolarità della linea estetica. In particolare è possibile eseguire infissi a battente (porte e finestre a una o più ante, a una o più ante, a bilico, a wasistas) o a specchiatura fissa.

SCHEDA TECNICA

Profilati di alluminio estrusi: lega EN-AW-6060 (UNI EN 573/3)

Tipo di profilato: ad interruzione del ponte termico

Tolleranze dimensionali e spessori: UNI EN 12020-2

Tipo di tenuta aria-acqua: Giunto aperto

Applicazione vetro: con fermavetro a scatto

Spessore vetro: variabile secondo il fermavetro impiegato da 17 mm. a 45 mm.

DIMENSIONI BASE:

Telaio fisso: profondità 50 mm.

Telaio mobile aperture interne: profondita’ 60 mm.

Telaio mobile aperture esterne: profondita’ 60 mm.

DATI PRESTAZIONALI:

Permeabilità all’aria A3 (UNI EN 42/76)

Tenuta all’acqua E4 (UNI EN 86/81)

Resistenza al vento V3 (UNI EN 77/77)

Trasmittanza termica Gruppo 2.2 (din 4108 part.4)

SEZIONI

Sezioni

 

 

© Copyright ATLL s.r.l. | Toscana

E' vietata la riproduzione totale o parziale del materiale contenuto all'interno del sito
.:: www.atll.it ::.