Serramenti

Home | Azienda | Contatto | Come raggiungerci | News | Certificazione

 

Serramenti a Battente

A5S BASIC

100 THERMIC

 

 

Serramenti a battente - A5S Basic

Per dare una risposta concreta alle sempre più vaste esigenze degli addetti ai lavori (progettisti, costruttori e clienti finali) ATLL produce e commercializza la tipologia di serramenti in alluminio A5S Basic i quali permettono di costruire finestre e porte con apertura esterna, interna, con superficie raggiata con caratteristiche proprie di resistenza, funzionalità ed estetica.

Questi serramenti rispondono alle piu’ severe normative europee in tema di tenuta agli agenti atmosferici e, grazie alla struttura dei profilati e alle vetrate isolanti, garantiscono un elevato risparmio energetico ed un elevato comfort acustico.

Le finestre e le porte prodotti da ATLL possono essere inoltre prodotti in maniera personalizzata (tipologie, forme e dimensioni) ed inseriti in qualsiasi contesto architettonico grazie all’adattabilità dei profili e alla gradevole linea estetica che si sposa perfettamente con ogni tipo di stile e ambiente.

UTILIZZO

Questa linea di serramenti consente la messa in opera di una larga varietà di infissi per l’inserimento in qualsiasi contesto ambientale grazie anche alla particolarità della linea estetica. 

In particolare è possibile eseguire infissi a battente (porte e finestre anta-ribalta, a una o più ante, a bilico, a wasistas) o a specchiatura fissa.

SCHEDA TECNICA

Profilati di alluminio estrusi: lega 6060 (UNI 9006-1)

Stato di fornitura: T5

Tolleranze dimensionali e spessori: UNI 3879

Tipo di tenuta aria-acqua: Doppia battuta/ Giunto aperto

Applicazione vetro: con fermavetro a scatto

Spessore vetro: variabile secondo il fermavetro impiegato da 4 mm. a 38 mm

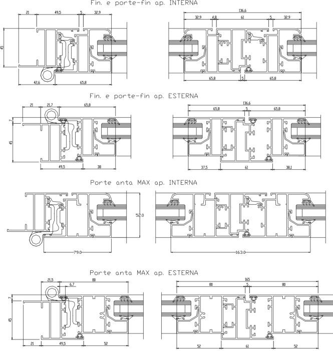
DIMENSIONI BASE:

Telaio fisso: profondità 45 mm.

Telaio mobile aperture interne: profondita’ 45 mm.

Telaio mobile aperture esterne: profondita’ 45 mm.

DATI PRESTAZIONALI:

Permeabilità all’aria A3

Tenuta all’acqua E4

Resistenza al vento V3

SEZIONI

Sezioni

 

 

© Copyright ATLL s.r.l.| Toscana

E' vietata la riproduzione totale o parziale del materiale contenuto all'interno del sito
.:: www.atll.it ::.