|

|
|
I serramenti scorrevoli SLIDE 60
prodotti da ATLL consentono di sposare le caratteristiche di estetica e
funzionalità con l’economicità.
Questa tipologia di serramenti è stata concepita per la realizzazione di
porte balcone e finestre scorrevoli con particolare dimensione ed ampiezza.
Si possono realizzare aperture a due, tre o quattro ante su due binari, oppure tre o sei ante scorrevoli su tre binari.
Abbinati con altri sistemi è possibile costruire specchiature composte fisse ed apribili a battente. |
|
UTILIZZO |
|
Le caratteristiche tecnico-funzionali delle linea
di serramenti SLIDE 60 consente una agevole abbinamento con altri serramenti in modo da poter realizzare sistemi compositi con specchiature laterali,
sopraluci, sottoluci.
La linea di serramenti SLIDE 60 consente realizzazione di finestre o porte balcone a due, tre, quattro ante scorrevoli, porte balcone o finestre a tre o sei ante scorrevoli su tre binari. |
|
SCHEDA
TECNICA SERRAMENTO |
|
Profilati di alluminio
estrusi: lega 6060 (UNI 9006-1) |
|
Stato di fornitura:
T5 |
|
Tolleranze dimensionali e spessori: UNI
3879 |
|
Tipo di tenuta aria-acqua:
Mediante guarnizioni a spazzola |
|
Applicazione vetro: con
vetro ad infilare |
|
Spessore vetro:
variabile da 4 a 24 mm.etta 13 mm |
|
CARATTERISTICHE
DIMENSIONALI: |
|
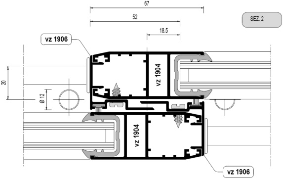
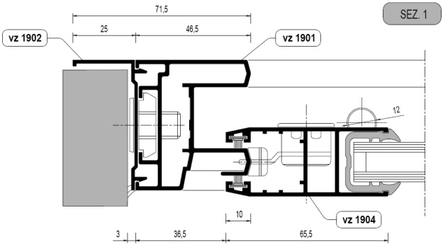
Profondità telaio: 53 mm |
|
Profondità anta: 28 mm |
|
Larghezza nodo centrale: 65,5 mm |
|
Capacità carrelli: 180 Kg per anta |
|
|
DATI
PRESTAZIONALI: |
|
Permeabilità all’aria A3 |
|
Tenuta all’acqua E2 |
|
Resistenza al vento
V2 |
|
|
SEZIONI |
|

|